Nowy dom (szeregowiec) na sprzedaż w Markach.
Dom na sprzedaż, cena 1250000 PLN, 10684 PLN/m2, powierzchnia 117 m2Marki, Польша







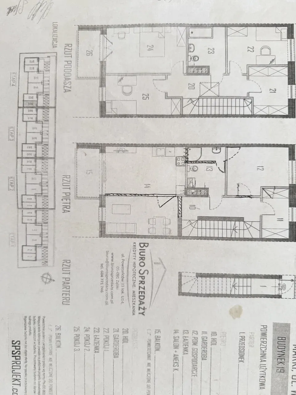
Na sprzedaż funkcjonalny segment środkowy w domu przy ul. Wilczej w Markach o powierzchni użytkowej 117 m² z dodatkowym strychem o powierzchni 54 m² do umeblowania oraz dwoma miejscami postojowymi przed domem. Dom znajduje się w spokojnej okolicy z niską zabudową, blisko sklepów (400 m do najbliższego, 1,2 km do Biedronki, 1,5 km do Lidla, 4,5 km do M1 Marki), placówek edukacyjnych (przedszkole My Way - 200 m, szkoły na Okólnej, Okólnej, Wspólnej i Piłsudskiego), tereny rekreacyjne (Park Briggsów, Park Wolontariuszy, Mareckie Centrum Edukacyjno-Rekreacyjne), a także dogodna komunikacja - autobusy ZTM do Metra Trocka i Żerań FSO, linia nocna N61 do centrum Warszawy, bezpłatne linie lokalne. Do centrum Warszawy około 30 minut samochodem, zjazd na drogę S8 - 5 minut.
Dom zbudowany z pustaków ceramicznych, z ocieploną elewacją, monolityczne stropy i schody, dach pokryty blachodachówką, system uzdatniania wody z własnej studni. Zainstalowane wodne ogrzewanie podłogowe, nowoczesny kocioł gazowy, cała komunikacja jest podłączona.
Dom jest częściowo odnowiony. Dom jest gotowy do zamieszkania lub wynajmu. Segment podzielony na dwa osobne mieszkania: na parterze 3 komnaty i na piętrze 4 pokoje z osobnym wejściem.
Dom zbudowany z pustaków ceramicznych, z ocieploną elewacją, monolityczne stropy i schody, dach pokryty blachodachówką, system uzdatniania wody z własnej studni. Zainstalowane wodne ogrzewanie podłogowe, nowoczesny kocioł gazowy, cała komunikacja jest podłączona.
Dom jest częściowo odnowiony. Dom jest gotowy do zamieszkania lub wynajmu. Segment podzielony na dwa osobne mieszkania: na parterze 3 komnaty i na piętrze 4 pokoje z osobnym wejściem.
| Informacje podstawowe | ||
|---|---|---|
| Rodzaj nieruchomości | Dom | |
| Rodzaj transakcji | Sprzedaż | |
| Rynek | Pierwotny | |
| Miejscowość | Marki | |
| Prąd (przyłącze) | Tak | |
| Woda (przyłącze) | Tak | |
| Kanalizacja | Tak | |
| Parking | Nie | |
| Parking | Tak | |
| Rok budowy | 2024 | |
| Informacje dodatkowe | ||
|---|---|---|
| Liczba pięter | 2 | |
| Liczba pokoi | 7 | |
| Liczba sypialni | 4 | |
| Liczba łazieniek | 2 | |
| Balkon | Tak | |
| Otoczenie | ||
|---|---|---|
| Głośność | Cicho | |
Kontakt:
Aliaksandr Mazur
Tel.: 503937749
Nr ref.: O-273
Aliaksandr Mazur
Tel.: 503937749
Nr ref.: O-273
