Mieszkanie na wynajem Warszawa, Ursus.
Mieszkanie na wynajem, cena 3300 PLN, 74 PLN/m2, powierzchnia 44 m2Warszawa, Польша













Jasne i przestronne mieszkanie na wynajem - 44,76 m² na nowoczesnym osiedlu Skorosze XI, Ursus
Do wynajęcia zadbane, gotowe do wprowadzenia mieszkanie o powierzchni 44,76 m², położone na prestiżowym, strzeżonym osiedlu Skorosze XI w dzielnicy Ursus. Lokal jest dostępny od 3 grudnia.
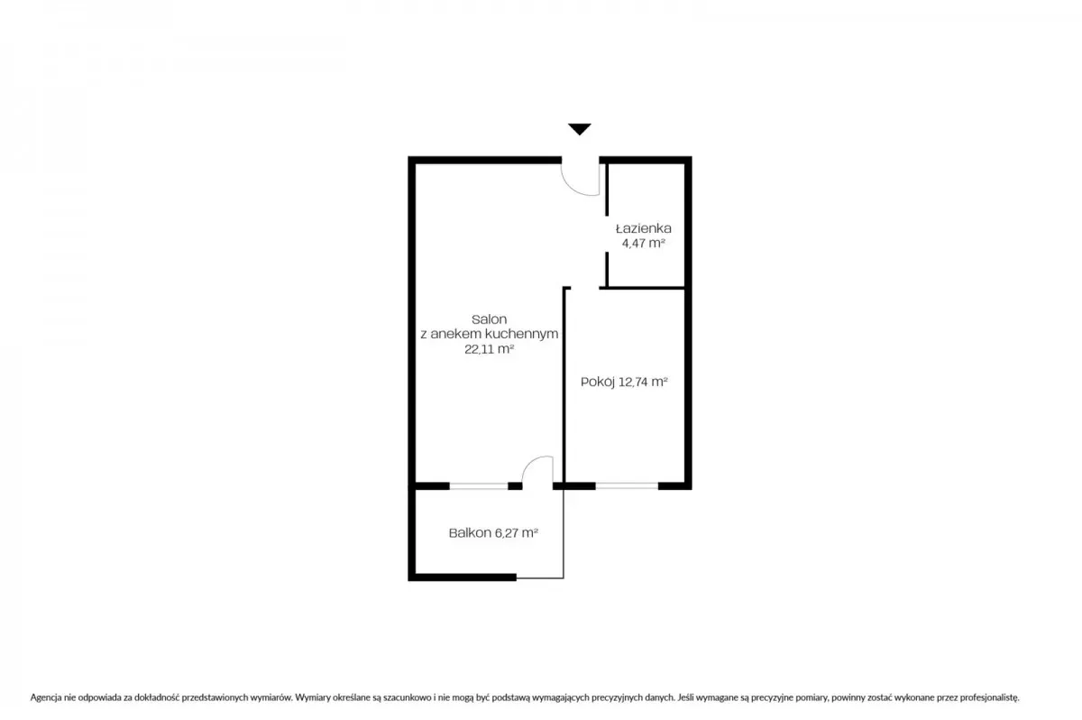
Rozkład mieszkania:
• Salon z kuchnią: 22,28 m²
• Sypialnia: 12,78 m²
• Łazienka: 4,44 m²
• Korytarz: 5,01 m²
• Balkon: 8,08 m²
Do mieszkania przynależy miejsce parkingowe w garażu podziemnym oraz komórka lokatorska. Dodatkowo płatne.
Mieszkanie znajduje się w doskonałym stanie technicznym i estetycznym, co pozwala na natychmiastowe zamieszkanie.
Atuty osiedla Skorosze XI:
Inwestycja Skorosze XI to jedno z najbardziej cenionych osiedli na warszawskim Ursusie. Znajduje się tu przestronny teren rekreacyjny o powierzchni 1450 m², który oferuje:
• fontanny,
• alejki spacerowe,
• strefę fitness,
• strefę relaksu.
Otoczenie zieleni: drzewa, krzewy, żywopłoty i dekoracyjne kwiaty sprawiają, że osiedle jest nie tylko funkcjonalne, ale i przyjazne dla mieszkańców.
Dodatkowym udogodnieniem jest siłownia dostępna wyłącznie dla mieszkańców osiedla, sala fitness oraz stół do tenisa stołowego.
Lokalizacja:
Osiedle Skorosze XI położone jest na granicy dzielnic Ursus i Włochy, co zapewnia:
• wygodny dostęp do Alej Jerozolimskich - szybki dojazd do centrum Warszawy (ok. 10 minut samochodem, ok. 15 minut komunikacją miejską),
• bliskość stacji WKD oraz przystanków autobusowych (100 m od osiedla),
• dojazd do Lot Lotniska Chopina w zaledwie 15 minut
OPŁATY
- 3300 PLN miesięcznie za mieszkanie
- 200 PLN miesięcznie miejsce postojowe
- 200 PLN miesięcznie komórka
- czynsz administracyjny ok 620 PLN plus opłata za prąd
- kaucja 3500
- Umowa najmu okazjonalnego.
Do wynajęcia zadbane, gotowe do wprowadzenia mieszkanie o powierzchni 44,76 m², położone na prestiżowym, strzeżonym osiedlu Skorosze XI w dzielnicy Ursus. Lokal jest dostępny od 3 grudnia.
Rozkład mieszkania:
• Salon z kuchnią: 22,28 m²
• Sypialnia: 12,78 m²
• Łazienka: 4,44 m²
• Korytarz: 5,01 m²
• Balkon: 8,08 m²
Do mieszkania przynależy miejsce parkingowe w garażu podziemnym oraz komórka lokatorska. Dodatkowo płatne.
Mieszkanie znajduje się w doskonałym stanie technicznym i estetycznym, co pozwala na natychmiastowe zamieszkanie.
Atuty osiedla Skorosze XI:
Inwestycja Skorosze XI to jedno z najbardziej cenionych osiedli na warszawskim Ursusie. Znajduje się tu przestronny teren rekreacyjny o powierzchni 1450 m², który oferuje:
• fontanny,
• alejki spacerowe,
• strefę fitness,
• strefę relaksu.
Otoczenie zieleni: drzewa, krzewy, żywopłoty i dekoracyjne kwiaty sprawiają, że osiedle jest nie tylko funkcjonalne, ale i przyjazne dla mieszkańców.
Dodatkowym udogodnieniem jest siłownia dostępna wyłącznie dla mieszkańców osiedla, sala fitness oraz stół do tenisa stołowego.
Lokalizacja:
Osiedle Skorosze XI położone jest na granicy dzielnic Ursus i Włochy, co zapewnia:
• wygodny dostęp do Alej Jerozolimskich - szybki dojazd do centrum Warszawy (ok. 10 minut samochodem, ok. 15 minut komunikacją miejską),
• bliskość stacji WKD oraz przystanków autobusowych (100 m od osiedla),
• dojazd do Lot Lotniska Chopina w zaledwie 15 minut
OPŁATY
- 3300 PLN miesięcznie za mieszkanie
- 200 PLN miesięcznie miejsce postojowe
- 200 PLN miesięcznie komórka
- czynsz administracyjny ok 620 PLN plus opłata za prąd
- kaucja 3500
- Umowa najmu okazjonalnego.
| Informacje podstawowe | ||
|---|---|---|
| Rodzaj nieruchomości | Mieszkanie | |
| Rodzaj transakcji | Wynajem | |
| Rynek | Wtórny | |
| Miejscowość | Warszawa | |
| Prąd (przyłącze) | Tak | |
| Woda (przyłącze) | Tak | |
| Kanalizacja | Tak | |
| Parking | Nie | |
| Parking | Tak | |
| Rok budowy | 2017 | |
| Informacje dodatkowe | ||
|---|---|---|
| Piętro | 3 | |
| Liczba pięter | 6 | |
| Liczba pokoi | 2 | |
| Liczba sypialni | 1 | |
| Liczba łazieniek | 1 | |
| Stan obiektu | Do użytku | |
| Rodzaj kuchni | Aneks | |
| Balkon | Tak | |
Kontakt:
Aliaksandr Mazur
Tel.: 503937749
Nr ref.: O-206
Aliaksandr Mazur
Tel.: 503937749
Nr ref.: O-206
