Dom (Wolnostojący) na sprzedaż Mokotów.
Dom na sprzedaż, cena 15900000 PLN, 20976 PLN/m2, powierzchnia 758 m2Warszawa, Польша













NOWOCZESNA WILLA W SERCU STAREGO MOKOTOWA
Przestronna willa | Unikalna przestrzeń | Ekskluzywne wnętrze | Prywatność
*****
ROZKŁAD POMIESZCZEŃ:
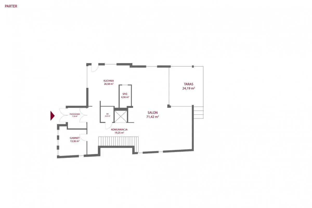
Parter:
* Przestrzeń otwarta z zarysowanymi konturami pomieszczeń: kuchnią, jadalnią oraz salonem,
* rozległy taras.
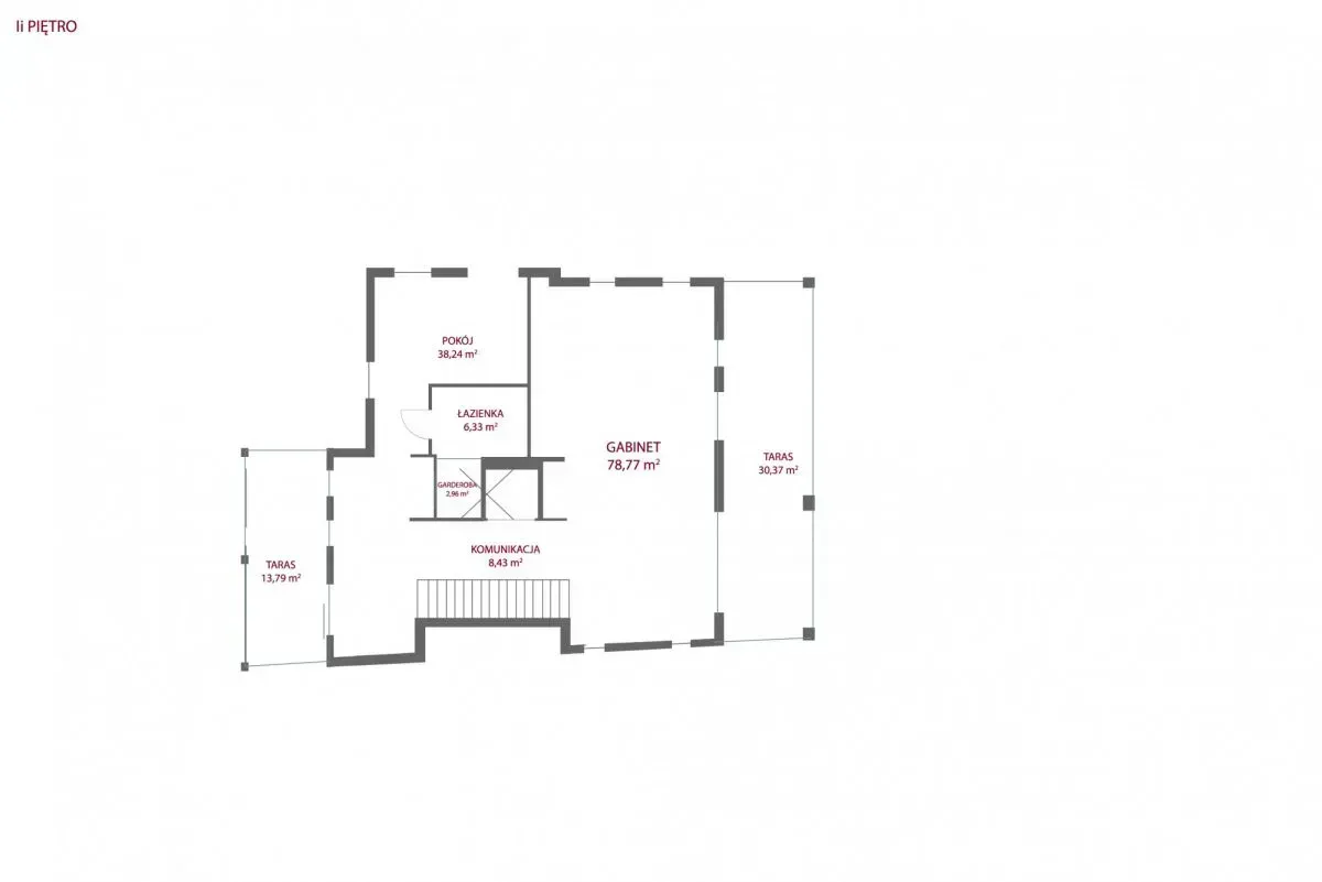
1 Piętro:
* Gabinet,
* toaleta.
* sypialnia master z przestronną garderobą, łazienką z prysznicem i wanną,
* trzy sypialnie gościnne z łazienkami.
Na najwyższym poziomie znajduje się niezależny apartament z:
* Kuchnią,
* sypialnią oraz łazienką i dwoma tarasami - wschodnim i zachodnim,
* strefa spa i relaksu - sauna fińska z natryskiem.
Poziom -1:
* Pomieszczenia gospodarcze,
* przestrzeń garażowa na 6 aut.
STANDARD:
Marmurowe podłogi, drewniany parkiet, przeszklone ściany, niestandardowy projekt wnętrza, galeryjna przestrzeń to główne cechy tej niezwykłej oferty.
Nowoczesna zabudowa kuchni, z biżuteryjnymi dodatkami w kolorze złota, industrialne elementy wykończenia stropu oraz ściana z surowej cegły (ocalona z oryginalnego budynku) to tylko niektóre elementy podkreślające indywidualny charakter rezydencji.
Klatka schodowa to właściwie nowoczesna rzeźba z surowego betonu. Przeszklona, lustrzana winda łączy wszystkie poziomy domu.
LOKALIZACJA:
Rezydencja położona jest na kameralnej działce, otoczona starodrzewiem, ukryta wśród zabudowy willowej. Doskonała lokalizacja tuż na Mokotowskiej Skarpie zapewnia idealną infrastrukturę. Dodatkowo, bezpośrednie sąsiedztwo historycznego Parku Królikarnia oraz licznych parków i skwerów czyni tę willę jedną z najbardziej pożądanych nieruchomości w Warszawie.
Serdecznie zapraszam na prezentację!
Przestronna willa | Unikalna przestrzeń | Ekskluzywne wnętrze | Prywatność
*****
ROZKŁAD POMIESZCZEŃ:
Parter:
* Przestrzeń otwarta z zarysowanymi konturami pomieszczeń: kuchnią, jadalnią oraz salonem,
* rozległy taras.
1 Piętro:
* Gabinet,
* toaleta.
* sypialnia master z przestronną garderobą, łazienką z prysznicem i wanną,
* trzy sypialnie gościnne z łazienkami.
Na najwyższym poziomie znajduje się niezależny apartament z:
* Kuchnią,
* sypialnią oraz łazienką i dwoma tarasami - wschodnim i zachodnim,
* strefa spa i relaksu - sauna fińska z natryskiem.
Poziom -1:
* Pomieszczenia gospodarcze,
* przestrzeń garażowa na 6 aut.
STANDARD:
Marmurowe podłogi, drewniany parkiet, przeszklone ściany, niestandardowy projekt wnętrza, galeryjna przestrzeń to główne cechy tej niezwykłej oferty.
Nowoczesna zabudowa kuchni, z biżuteryjnymi dodatkami w kolorze złota, industrialne elementy wykończenia stropu oraz ściana z surowej cegły (ocalona z oryginalnego budynku) to tylko niektóre elementy podkreślające indywidualny charakter rezydencji.
Klatka schodowa to właściwie nowoczesna rzeźba z surowego betonu. Przeszklona, lustrzana winda łączy wszystkie poziomy domu.
LOKALIZACJA:
Rezydencja położona jest na kameralnej działce, otoczona starodrzewiem, ukryta wśród zabudowy willowej. Doskonała lokalizacja tuż na Mokotowskiej Skarpie zapewnia idealną infrastrukturę. Dodatkowo, bezpośrednie sąsiedztwo historycznego Parku Królikarnia oraz licznych parków i skwerów czyni tę willę jedną z najbardziej pożądanych nieruchomości w Warszawie.
Serdecznie zapraszam na prezentację!
| Informacje podstawowe | ||
|---|---|---|
| Rodzaj nieruchomości | Dom | |
| Rodzaj transakcji | Sprzedaż | |
| Rynek | Wtórny | |
| Miejscowość | Warszawa | |
| Prąd (przyłącze) | Tak | |
| Woda (przyłącze) | Tak | |
| Kanalizacja | Tak | |
| Parking | Nie | |
| Parking | Tak | |
| Rok budowy | 2016 | |
| Informacje dodatkowe | ||
|---|---|---|
| Powierzchnia działki | 665 | |
| Liczba pięter | 2 | |
| Liczba pokoi | 8 | |
| Liczba sypialni | 7 | |
| Liczba łazieniek | 3 | |
| Stan obiektu | Do użytku | |
| Rodzaj kuchni | Aneks | |
| Ogród | Tak | |
Kontakt:
Aliaksandr Mazur
Tel.: 503937749
Nr ref.: O-305
Aliaksandr Mazur
Tel.: 503937749
Nr ref.: O-305
