Dom na sprzedaż Warszawa, Mokotów.
Dom na sprzedaż, cena 3000000 PLN, 14563 PLN/m2, powierzchnia 206 m2Warszawa, Польша
















Dzień dobry, mam przyjemność przedstawić Państwu do zakupu dom na Sadybie, o powierzchni 206m2 z południowo zachodnim salonem z wyjściem na taras oraz do ogrodu. Wielkość działki to 384m2.To doskonała lokalizacja dla rodzin z dziećmi 2+2 lub 2+3. Znajdzie się również pokój dla pracy zdalnej. To dom z duszą, dla osób, które lubią starą tkankę Warszawy. Wymaga remontu, aby mógł cieszyć nowych właścicieli. Grubość ścian powoduje przyjemny chłód w ciągu lata, natomiast zimą grube mury trzymają ciepło. Kamienna elewacja zewnętrzna zachwyca swoja prostota i daje uczucie domu we Włoszech lub we Francji. Duży ogród porośnięty starodrzewem, gdzie można poczuć się jak na wakacjach. Śpiew ptaków budzi o poranku.
ROZKŁAD DOMU:
Poniżej załączam państwu parametry nieruchomości:
Parter: 61,70m2+ taras
-kuchnia 10,20m2
-salon 27,20m2
-hall 2,70m2,
-przedpokój 6m2,
-Wc 1,1m2,
-schody 5,6m2
-taras 12,40m2,
Piętro I: 53,40 m2+ taras
-pokój 11,60m2,
-pokój 13,30m2,
-pokój 10,10m2,
-łazienka 3,20m2
-garderoba 1,20m2
-przedpokój 6,40m2
-taras 10,90m2
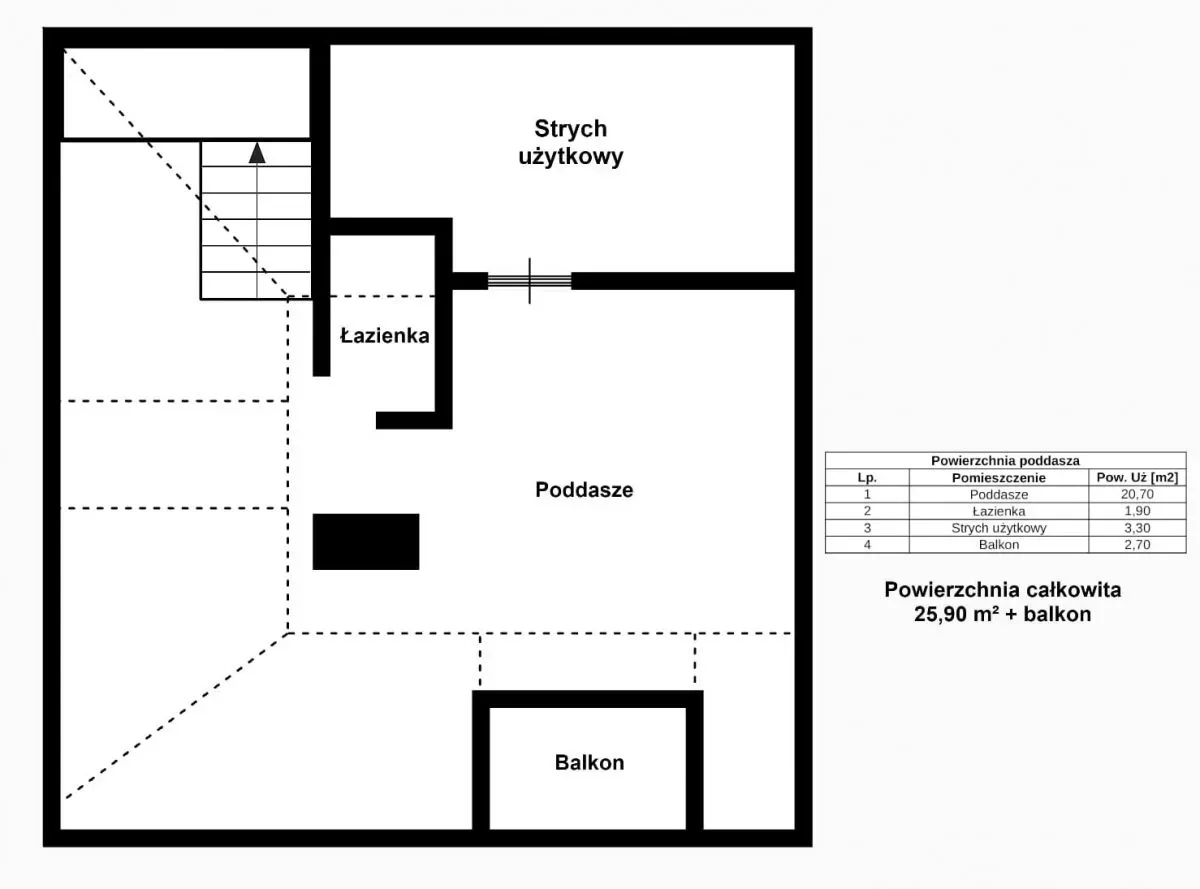
Poddasze:25,90m2 + balkon
poddasze użytkowe: 20,70m2,
poddasze nieużytkowe: 3,30m2,
łazienka 1,90m2,
balkon: 2,70m2,
Piwnica: 64,90m2
-garaż 24,80m2,
-kotłownia+ składzik-6,20m2,
-hall- 6,70m2,
-pralnia- 10,50m2,
-pomieszczenie gospodarcze 17,10m2
RAZEM: 205,90m2
MIESIĘCZNE OPŁATY DLA RODZINY 3 OSOBOWEJ:
• Średniomiesięczna opłata za gaz oraz za podgrzewanie wody: 466zł,
• Woda:150zł,
• Prąd:200zł,
• Śmieci:100zł,
RAZEM: 916zł
Podatek od nieruchomości 600zł rocznie.
• Ogrzewanie gazowe. Piec z komorą spalania wraz z podgrzewaniem wody.
• Kanalizacja, woda miejska.
KOMUNIKACJA, SZKOŁY, OKOLICA:
• Przystanek autobusowy przy domu.
• Od strony ul. Jana Sobieskiego -Tramwaj. Planowane jest ukończenie tej trasy, na koniec 2024 r.
• Niska zabudowa domów w zabudowie bliźniaczej oraz szeregowej,
• Wokół szkoły podstawowe, zarówno na Sadybie jaki na Wilanowie,
• W promieniu 1,5 km znajdują się: Centrum Handlowe Sadyba Best Mall oraz liczne powierzchnie handlowo usługowe
• Naprzeciwko domu znajduje się park Szczubełka, Jeziorko Czerniakowskie oraz liczne skwery.
Dom jest do remontu.
ROZKŁAD DOMU:
Poniżej załączam państwu parametry nieruchomości:
Parter: 61,70m2+ taras
-kuchnia 10,20m2
-salon 27,20m2
-hall 2,70m2,
-przedpokój 6m2,
-Wc 1,1m2,
-schody 5,6m2
-taras 12,40m2,
Piętro I: 53,40 m2+ taras
-pokój 11,60m2,
-pokój 13,30m2,
-pokój 10,10m2,
-łazienka 3,20m2
-garderoba 1,20m2
-przedpokój 6,40m2
-taras 10,90m2
Poddasze:25,90m2 + balkon
poddasze użytkowe: 20,70m2,
poddasze nieużytkowe: 3,30m2,
łazienka 1,90m2,
balkon: 2,70m2,
Piwnica: 64,90m2
-garaż 24,80m2,
-kotłownia+ składzik-6,20m2,
-hall- 6,70m2,
-pralnia- 10,50m2,
-pomieszczenie gospodarcze 17,10m2
RAZEM: 205,90m2
MIESIĘCZNE OPŁATY DLA RODZINY 3 OSOBOWEJ:
• Średniomiesięczna opłata za gaz oraz za podgrzewanie wody: 466zł,
• Woda:150zł,
• Prąd:200zł,
• Śmieci:100zł,
RAZEM: 916zł
Podatek od nieruchomości 600zł rocznie.
• Ogrzewanie gazowe. Piec z komorą spalania wraz z podgrzewaniem wody.
• Kanalizacja, woda miejska.
KOMUNIKACJA, SZKOŁY, OKOLICA:
• Przystanek autobusowy przy domu.
• Od strony ul. Jana Sobieskiego -Tramwaj. Planowane jest ukończenie tej trasy, na koniec 2024 r.
• Niska zabudowa domów w zabudowie bliźniaczej oraz szeregowej,
• Wokół szkoły podstawowe, zarówno na Sadybie jaki na Wilanowie,
• W promieniu 1,5 km znajdują się: Centrum Handlowe Sadyba Best Mall oraz liczne powierzchnie handlowo usługowe
• Naprzeciwko domu znajduje się park Szczubełka, Jeziorko Czerniakowskie oraz liczne skwery.
Dom jest do remontu.
| Informacje podstawowe | ||
|---|---|---|
| Rodzaj nieruchomości | Dom | |
| Rodzaj transakcji | Sprzedaż | |
| Rynek | Pierwotny | |
| Miejscowość | Warszawa | |
| Prąd (przyłącze) | Tak | |
| Woda (przyłącze) | Tak | |
| Kanalizacja | Tak | |
| Parking | Nie | |
| Rok budowy | 1958 | |
| Informacje dodatkowe | ||
|---|---|---|
| Powierzchnia działki | 384 | |
| Liczba pięter | 2 | |
| Liczba pokoi | 5 | |
| Liczba sypialni | 4 | |
| Liczba łazieniek | 3 | |
| Balkon | Tak | |
| Ogród | Tak | |
Kontakt:
Aliaksandr Mazur
Tel.: 503937749
Nr ref.: O-194
Aliaksandr Mazur
Tel.: 503937749
Nr ref.: O-194
